(1)精密平口鉗“安裝在機床上”:
在加工機床上安裝精密平口鉗時,一般利用加工機床的T型槽。T型槽除用于安裝外還可進行定位,精密平口鉗一般通過導位塊進行定位。T型槽與加工機床的(X、Y)軸平行、垂直,利用導位塊可快速、可靠地進行平口鉗定位。
精密平口鉗的安裝例 精密平口鉗的底面![]() |

T型槽尺寸根據機床尺寸及制造商的不同而異。設定的平口鉗標準附配導位塊。若導位塊無法用于非標準槽寬(A尺寸),可作為特別附屬品,提供尺寸與機床相匹配的導位塊(參見導位塊資料)。安裝螺栓及夾具未標準附配。請根據安裝機床的T型槽寬(A尺寸),從附件中選擇。
精密平口鉗與機床發生沖突

根據安裝位置的不同,可能會與機床的立柱、防濺護罩發生沖突。請確認平口鉗的全長以及安裝位置(導位塊)至上述機床部件的距離、平口鉗活動鉗身的動作等事項。
考慮加工范圍的安裝:
若工件(加工部位)不在加工范圍(主軸的移動范圍)內,將無法進行加工。特別是并排配置平口鉗(多聯使用),安裝空間根據平口鉗形狀及安裝方法的不同而異。


帶法蘭平口鉗 利用無法蘭平口鉗的支架式家具進行安裝 利用無法蘭平口鉗的壓板進行安裝
(2)考慮“裝載重量”:
特別是在小型機床上使用并排配置平口鉗(多聯)時,必須考慮安裝機床的裝載重量限制。

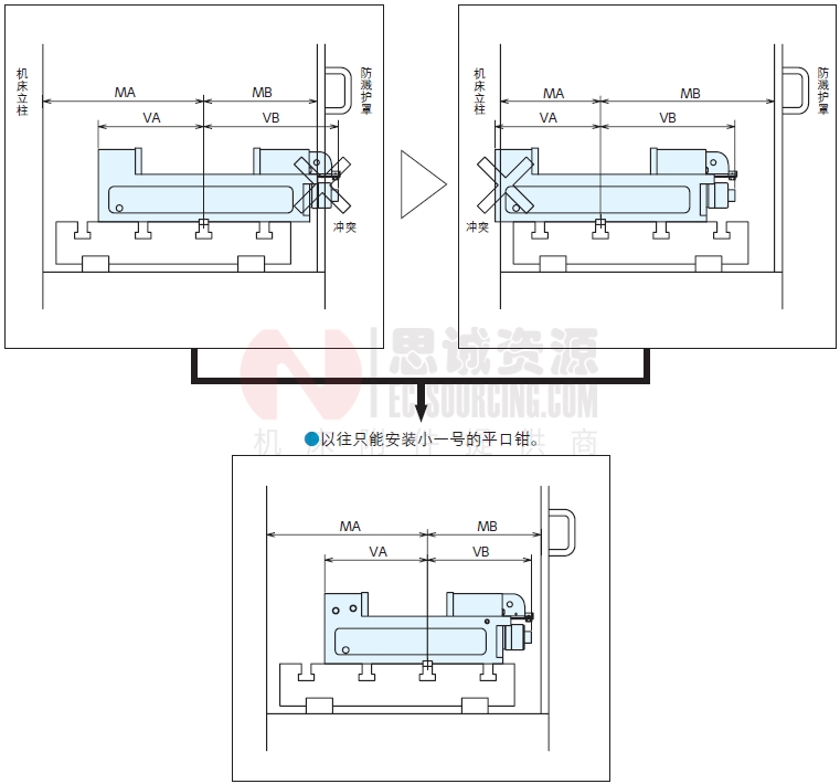
避免因導位塊位置變更(追加加工)而與機床發生沖突
幾乎所有加工機床均將T型槽作為基準,但根據機床機型的不同,T型槽間距以及與機床的沖突范圍可能會有所差異。
理想狀態是在不會與機床發生沖突、滿足加工范圍及裝載重量的條件下,選擇(鉗口張開度等)盡可能大的平口鉗,但由于機床工作臺T型槽間距、平口鉗導位塊位置、機床沖突范圍等具體情況,有時只能選擇小一號的平口鉗。
因此,為確保可將平口鉗設置在與機床匹配的位置,本公司提供變更標準平口鉗導位塊槽(追加加工)的服務(有償)。需要時請加以利用。
與防濺護罩的沖突 即使改變安裝位置仍與立柱側發生沖突

變更導位塊位置(追加加工)

設定時應確保A>MA、C-A>/VIB。
※MA:安裝機床的安裝位置至立柱側沖突位置的距離
※MB:安裝機床的安裝位置至防濺護罩側沖突位置的距離
建議MB增加手柄操作所需的裕量。
![]() | 訂購方法 “追加加工平口鉗”+”-GB”+”加工尺寸:A” 例:訂購LTFV100且在A=250的位置進行追加加工時 LTFV100-GB250 |
規格
| 對應機型 | 型號 | 可加工范圍:A | B | C | 導槽寬度 |
| LTCV100 | LTCV100-GB(+A 尺寸) | 24-147,193-366 | 170 | 392 | 18 |
| LTCV125 | LTCV125-GB(+A 尺寸) | 24-177,223-429 | 200 | 455 | 18 |
| LTCV160 | LTCV160-GB(+A 尺寸) | 24-227,273-532 | 250 | 558 | 18 |
| LTCV200 | LTCV200-GB(+A 尺寸) | 80-252,298-566 | 275 | 690 | 18 |
| LTCV100H | LTCV100H-GB(+A 尺寸) | 24-147,193-366 | 170 | 392 | 18 |
| LTCV125H | LTCV125H-GB(+A 尺寸) | 24-177,223-429 | 200 | 455 | 18 |
| LTCV160H | LTCV160H-GB(+A 尺寸) | 24-227,273-532 | 250 | 558 | 18 |
| LTCV200H | LTCV200H-GB(+A 尺寸) | 80-252,298-566 | 275 | 690 | 18 |
| LTFV100Q | LTFV100Q-GB(+A 尺寸) | 24-99,173-279,321-342 | 150 | 483.5 | 18 |
| LTFV125Q | LTFV125Q-GB(+A 尺寸) | 24-99,141-152,198-329,371-404 | 175 | 560 | 18 |
| LTFV150Q | LTFV150Q-GB(+A 尺寸) | 24-113,198-428,470-508 | 175 | 700 | 18 |
| LTFV175Q | LTFV175Q-GB(+A 尺寸) | 24-119,198-469,511-549 | 175 | 741 | 18 |
| LT100MC | LT100MC-GB(+A 尺寸) | 24-79,125-254 | 102 | 316 | 18 |
| LT150MC | LT150MC-GB(+A 尺寸) | 24-120,166-354 | 143 | 435 | 18 |
























































































































































