GIN精展線切割萬力53145/WPV
品牌:GIN(精展)
型號:53145
¥待詢價(提交訂單10分鐘內獲取專屬報價單)
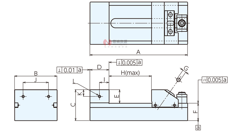
●ETO-TH型的磨削專用型。省略了夾具孔、槽及導位塊槽。
●精度優于原JIS 0級。
●采用SCM440材料,并進行了HRC50以上的淬火處理,可長
期保持精度。


| 型號 | A | B | C | D | E | F | G | H | I | J | K | (L 粗牙) |
| ETO- 80GTH | 185 | 80 | 60 | 40 | 26 | 34 | 6 | 80 | 20 | 48 | 13 | M6×1.0 |
| ETO-100GTH | 230 | 100 | 73 | 45 | 32 | 41 | 8 | 100 | 22.5 | 60 | 16 | M6×1.0 |
| ETO-125GTH | 250 | 125 | 86 | 45 | 45 | 41 | 8 | 120 | 22.5 | 80 | 22.5 | M6×1.0 |
| 訂單號 | 型號 | 鉗口寬度 | 鉗口高度 | 鉗口張開度 | 夾緊力kN | 緊固扭矩N?m※ | 重量kg |
| 966187 | ETO- 80GTH | 80 | 26 | 80 | 6 | 20 | 5 |
| 966188 | ETO-100GTH | 100 | 32 | 100 | 8 | 60 | 9 |
| 966189 | ETO-125GTH | 125 | 45 | 120 | 8 | 70 | 14 |
思誠資源為您提供:ERON-NABEYA雅朗楔鎖式工具加工用平口鉗(G型)的采購報價、ERON(雅朗)ETO-80GTH型號參數、規格圖片、PDF畫冊等資料,如您想了解更多關于ERON(雅朗)正品品牌的其他精密平口鉗資料與產品貨期庫存、行情價格,就在思誠資源MRO商城。
備注:因廠家會在沒有任何提前通知的情況下更改產品包裝、產地或者一些附件,本公司不能確??蛻羰盏降呢浳锱c思誠資源網站提供的產品圖片、產地、附件說明等完全一致。若本網站沒有及時更新,敬請諒解!
